Αγρίνιο
Αγρίνιο: Ανακοινώσεις Απ. Κατσιφάρα για Παλαιό Νοσοκομείο (Βίντεο – Φωτό)
Το μεσημέρι της Πέμπτης ο Περιφερειάρχης Δυτικής Ελλάδας Απόστολος Κατσιφάρας παραχώρησε Συνέντευξη Τύπου με θέμα την πλήρη αναμόρφωση και αξιοποίηση των εγκαταστάσεων του Παλαιού Νοσοκομείου Αγρινίου.
Το παλαιό Νοσοκομείο Αγρινίου μπαίνει πλέον σε τροχιά επαναχρησιμοποίησης με τη στέγαση εκεί υγειονομικών υπηρεσιών και άλλων κοινωνικών δομών, όπως ανακοίνωσε σήμερα Πέμπτη 4 Απριλίου 2019 ο Περιφερειάρχης Δυτικής Ελλάδας Απόστολος Κατσιφάρας σε συνέντευξη Τύπου που παραχώρησε στα γραφεία της Περιφέρειας, στο Αγρίνιο.
Η Περιφέρεια προχωρά στη σύναψη Προγραμματικής Σύμβασης με την 6η Υγειονομική Περιφέρεια Δυτικής Ελλάδας και το Γενικό Νοσοκομείο Αγρινίου για την αναδιαμόρφωση των χώρων του παλαιού Νοσοκομείου, με εξασφαλισμένη χρηματοδότηση 1,5 εκατομμυρίων ευρώ απ’ το Πρόγραμμα Δημοσίων Επενδύσεων της Περιφέρειας Δυτικής Ελλάδας.
«Φιλοδοξούμε μέσα απ’ αυτήν την ολοκληρωμένη παρέμβαση να παραδώσουμε ένα κτίριο – στολίδι στην πόλη του Αγρινίου. Και ένα κτίριο που θ’ αναβαθμίσει όλη την περιοχή. Με καλό συντονισμό, με καλή συνεργασία και κοινούς στόχους κάνουμε βήματα μπροστά και αλλάζουμε την εικόνα της Περιφέρειας. Ανοίγουμε δρόμους σε κάθε τομέα πολιτικής, σε κάθε τομέα έργου. Και έτσι θα συνεχίσουμε» τόνισε ο κ. Κατσιφάρας και επεσήμανε:
«Έχουμε αποδείξει στην πράξη ότι νοιαζόμαστε. Ότι δεν μένουμε απαθείς ή αδρανείς. Δεν σηκώνουμε ψηλά τα χέρια όταν υπάρχουν γύρω μας ζητήματα που κάνουν προβληματική την καθημερινότητα μας. Δεν προσπερνάμε προβλήματα και διεκδικήσεις της περιοχής, ανεξαρτήτως αν ανήκουν ή όχι στον στενό πυρήνα των αρμοδιοτήτων μας».
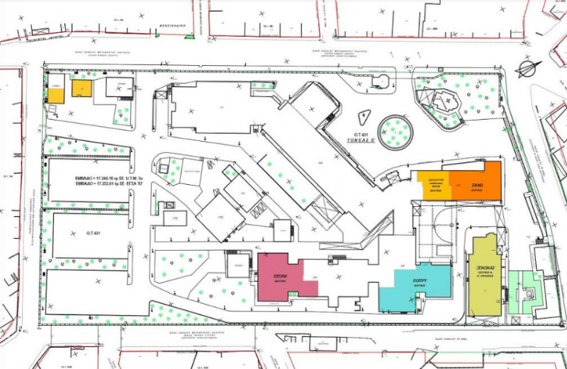
Ειδικότερα, η Προγραμματική Σύμβαση προβλέπει την Αναδιαμόρφωση τμημάτων κτιρίων Α, Β και Γ του παλαιού Νοσοκομείου Αγρινίου σε χώρο στέγασης του ΕΟΠΥΥ (Κτίριο Α), σε χώρο στέγασης του Δ.ΙΕΚ Βοηθών Νοσηλευτικής Γενικής Νοσηλείας (Α΄ όροφος Κτίριο Α), σε χώρο στέγασης του Ξενώνα ατόμων με ψυχικές νόσους στο πλαίσιο της αποασυλοποίησης (Κτίριο Β) και σε χώρο στέγασης του ΕΚΑΒ (Κτίριο Γ).
«Τέσσερις λειτουργίες που εφάπτονται με τον χώρο της δημόσιας Υγείας και τέσσερις Υπηρεσίες που με την στέγαση τους στο παλαιό Νοσοκομείο Αγρινίου θα γίνουν περισσότερο λειτουργικές, με περισσότερες δυνατότητες στην απερίσπαστη εξυπηρέτηση των πολιτών» ανέφερε ο Περιφερειάρχης.
Το παλαιό Νοσοκομείο Αγρινίου, είναι ένα κτιριακό συγκρότημα που αποτελείται από δώδεκα κτίρια και καταλαμβάνει ένα ολόκληρο οικοδομικό τετράγωνο έκτασης 17,6 στρεμμάτων. Η μεταφορά των υπηρεσιών υγείας στο νέο νοσηλευτικό ίδρυμα της πόλης, είχε ως αποτέλεσμα την εγκατάλειψη και τη λεηλασία των υφιστάμενων κτιριακών υποδομών. Η επαναχρησιμοποίηση των κτιρίων και η χωροθέτηση σε αυτά νέων υπηρεσιών, εκτός από την άμεση βελτίωση της ποιότητας ζωής των πολιτών και την παροχή βελτιωμένων υπηρεσιών, θα προσφέρει και την επανένταξη του χώρου στη ζωή της πόλης.
Με την έγκριση της Προγραμματικής Σύμβασης η Περιφέρεια Δυτικής Ελλάδας ως φορέας υλοποίησης του έργου, μέσω της Διεύθυνσης Τεχνικών Υπηρεσιών της Περιφερειακής Ενότητας Αιτωλοακαρνανίας, αναλαμβάνει να δρομολογήσει τη δημοπράτηση του έργου και την κατασκευή των προβλεπόμενων εργασιών αναδιαμόρφωσης, που περιλαμβάνουν λειτουργικές επεμβάσεις καθώς επεμβάσεις επισκευής και συντήρησης των τριών κτιρίων.
Στη συνέντευξη Τύπου που δόθηκε στο Αγρίνιο συμμετείχαν ακόμη ο Υποδιοικητής 6ης ΥΠΕ Μιλτιάδης Ζαμπάρας, ο Διοικητής του Γενικού Νοσοκομείου Αγρίνιου Ανδρέας Τσώλης, ο Προϊστάμενος Διεύθυνσης Τεχνικών Έργων ΠΕ Αιτωλοακαρνανίας Αναστάσιος Αλεξόπουλος και ο Προϊστάμενος του Τμήματος Δομών Περιβάλλοντος Νικόλαος Μασίκας.
Αποσπάσματα από τη συνέντευξη Τύπου του Περιφερειάρχη Δυτικής Ελλάδας Απόστολου Κατσιφάρα για την Αναδιαμόρφωση τμημάτων του παλαιού Νοσοκομείου Αγρινίου, στο σύνδεσμο: https://youtu.be/X5WPjirPpwY


















